首页
商铺
写字楼
工厂/厂房
仓库/土地
医疗机构
公寓/酒店
找经纪人
指指点点
快速转店
委托选址
招募代理
新闻资讯
生意转让
商铺出租
求租商铺
商铺出售
收购商铺
仓库出租
仓库出售
土地租转
医疗机构转让
医疗机构收购
医疗机构合作
写字楼出租
写字楼出售
租写字楼
买写字楼
工厂转让
厂房出租
厂房出售
租厂房
买厂房
酒店转让
酒店出租
求租酒店
酒店出售
酒店收购
登录
注册
×
指点网
>
写字楼出售
>
写字楼出售信息
发布出售信息
杭州银湖精装写字楼出售,1.1万单价 地铁口
出售报价:
¥2200 万
信息编号:
XZLCS00000290
2000 ㎡
出售面积
连层
物业状态
物业类型
:
精装修
地址
:
浙江 杭州 富阳
联系人:
胡金标
身份:
中介
陆轩房产
认证:
未认证
扫码微信分享
时间
举报
更新时间:2023-05-28
查看联系方式
基本信息
出售面积:
2000 ㎡
每平单价:
1.10 元/㎡
物业状态:
精装修
物业类型:
连层
写字楼名称:
富春硅谷
出售详情
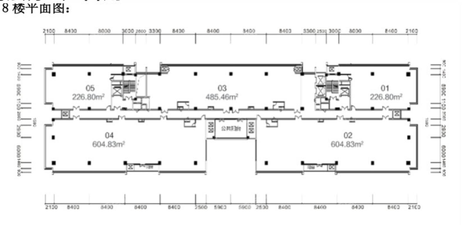
地铁口 精装修 顶上带大露台
位置
地址:浙江 杭州 富阳
出售信息推荐
深圳福田区整栋写字楼出售 英龙大厦
深圳龙华甲级写字楼出售,新楼盘,信利康·乐创荟
上海内环东整栋写字楼出售转让,杨浦区外滩核心
深圳前海一手甲级写字楼出售 汉京时代大厦
更多推荐
徐州云龙区整栋写字楼出售丨高铁站1公里,地铁站200米,科创园区7.3万平
徐州 云龙 毛坯
73,000 ㎡
出售报价:
¥2200 万
整栋
保定莲池办公楼出售丨500平深圳园·创投中心|总部级写字楼
保定 莲池 毛坯
500 ㎡
出售报价:
¥2200 万
整层
西安未央区整栋写字楼出售丨白桦林金融创新中心酒店办公商业综合体22450平
西安 未央 毛坯
22,450 ㎡
出售报价:
¥2200 万
整栋
合肥蜀山政务区写字楼出售丨新地中心450平
合肥 蜀山 简装修
450 ㎡
出售报价:
¥2200 万
连层
合肥蜀山政务区办公室出售丨置地广场湖景房470平方
合肥 蜀山 精装修
470 ㎡
出售报价:
¥2200 万
其它
合肥政务区写字楼出售丨天鹅湖万达电梯口600平
合肥 蜀山 精装修
600 ㎡
出售报价:
¥2200 万
隔间
合肥蜀山区写字楼出售丨新华国际广场拐角630平
合肥 蜀山 精装修
630 ㎡
出售报价:
¥2200 万
其它
合肥蜀山区办公室出售丨华地金融中心275平
合肥 蜀山 精装修
275 ㎡
出售报价:
¥2200 万
隔间
网站地图
生意转让
商铺出租
求租商铺
商铺出售
收购商铺
×
我要举报
请选择/填写举报理由:
虚假信息
失效信息
手机空号
中介冒充
其他信息不属实
立即举报
×
微信扫码分享
进入小程序查看
×
请输入您的期望价格
提交
免责声明:
本网站信息由网站用户提供,其内容和图片的真实性、合法性、版权由信息提供者负责,最终以政府部门登记备案的信息为准。本网站信息凡涉及面积单位均为建筑面积,本网站不声明或保证内容之正确性和可靠性,租赁或购买该物业时,请谨慎核查。
郑重提示:
请您在签订合同之前,切勿支付任何形式的费用,以免上当受骗。
关于我们
联系我们
委托选址
常见问题
订阅推送
咨询热线:134-1874-5414 公司邮箱:505857069@qq.com
Copyright © 2020-2028 shangpu99.com 深圳市起兴互联网络有限公司版权所有 备案:粤ICP备18159886号
微信小程序
官方公众号
客服热线
详情请咨询:
400-820-8820
确定