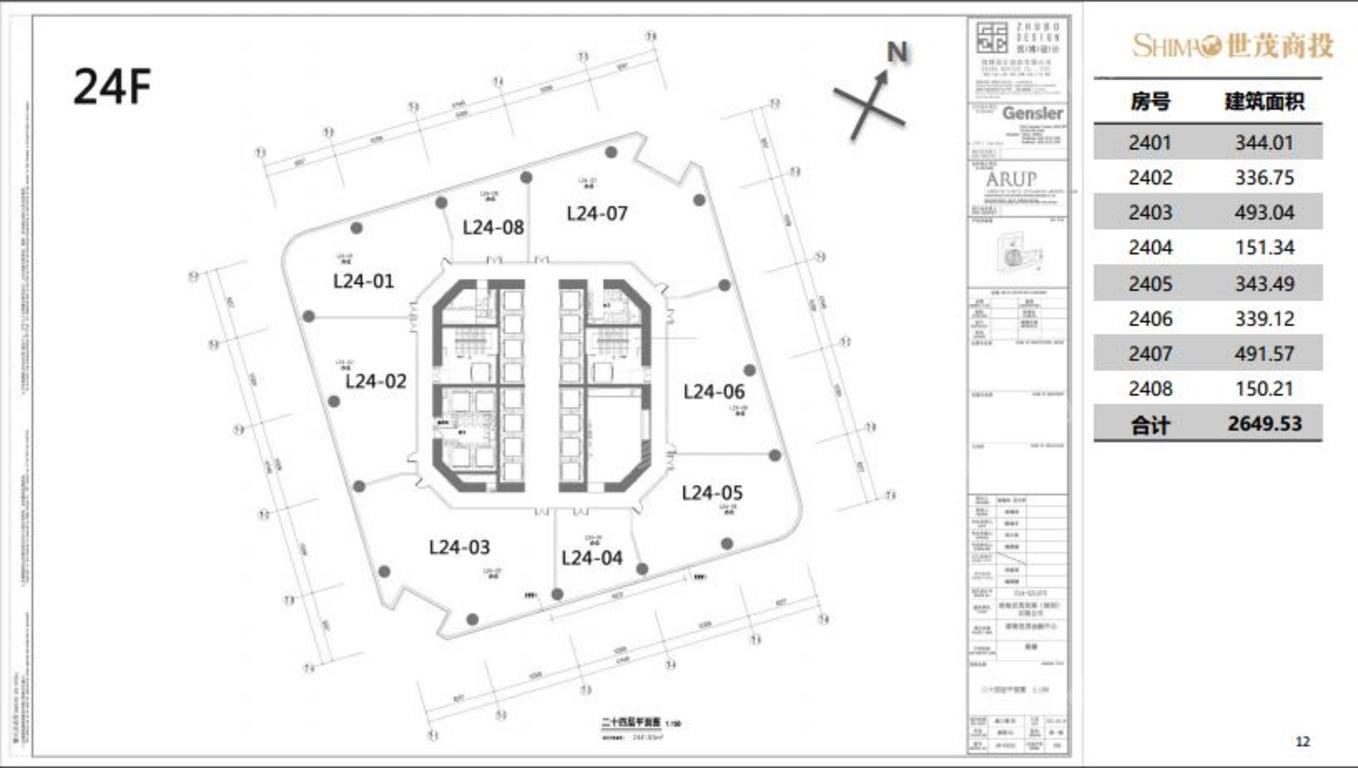
前海第一高楼1326.99平方米,185元(精装修带家具)现80个卡位+3个会议室+10个办公室+1个储物室,可自行增加卡位,可容纳100多人办公 前海管理局租金补贴:2023年入驻补贴20元/平方/月(要求注册地,办公地,纳税地在前海) 1、 位置: 前海自贸区兴海大道与临海大道的交汇处东南角 2、 开发商:世茂集团(世茂旗下3家上市公司,全国房地产百强企业排名前十) 3、交通:地铁5号线铁路公园站无缝接驳 4、 景观:看大小南山、一线海景 5、深圳甲级写字楼(最高交付标准) 包括铝扣天花板、灯盘、空调末端机、新风系统、全电动窗帘、网络地板。 6、物业管理:世茂物业管理有限公司,国际金钥匙24小时服务体系标准。 物业管理费40元/平方米/月(含上班阶段空调费:周一到周五8:00-19:00) 7、餐饮配套:裙楼及独栋商业2.3万方餐饮配套,西贝·小贝肉夹馍、张粿老、鱼你yoyo酸菜鱼、麦当劳、老碗会、奈雪,全家便利店、乐刻健身房等各大品牌均已开业

