厂房转让/出售
苏州市工业园区优质GMP厂房,价格面议
地理位置: 苏州市工业园区生物医药产业园五期,紧邻车坊沪常高速车坊出入口,交通便利,大车进出方便。
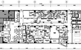
基本信息: 楼层高度10楼,货梯称重2吨,计租面积 1001平米,使用面积约745平米。包括200平米办公区,60平米万级实验室,125平米十万级车间,360平米普通车间。车间24年4月才投入使用,部分设备设施仍处于全新未使用状态,相关设备年检资料齐全。
适合行业: 医疗器械生产/实验室
转让方式: 整体转让,价格面议
联系方式: 闫玉庆 (微信同号)

